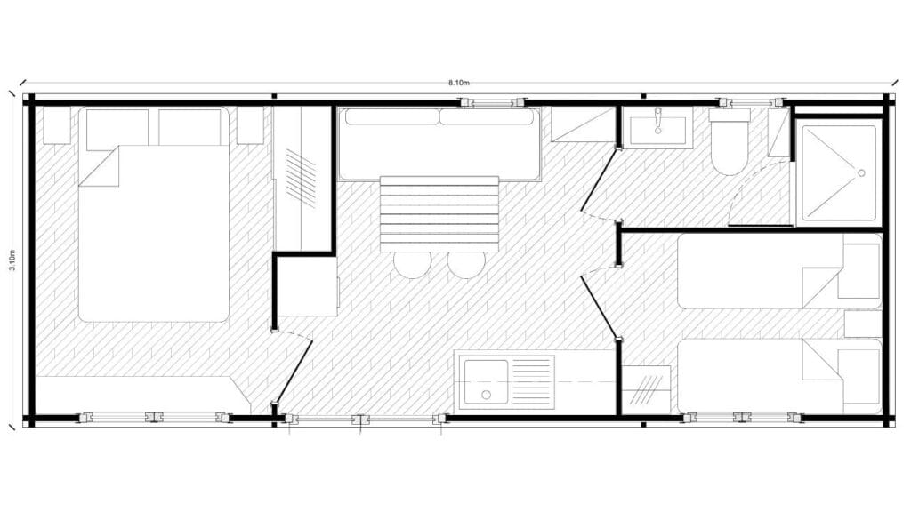
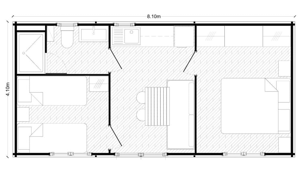
Top-tier constructions backed by TEK’s reliability and expertise, blending refined aesthetics with an eco-friendly philosophy.
Created to capture the essence of glamping, they provide a distinctive space where luxury harmonizes with nature, delivering outstanding comfort and practicality while fully respecting the environment.
Offered in a range of sizes to suit your specific needs, they are perfect for both tourism enterprises and personal use.





